Katso asunnon 3D

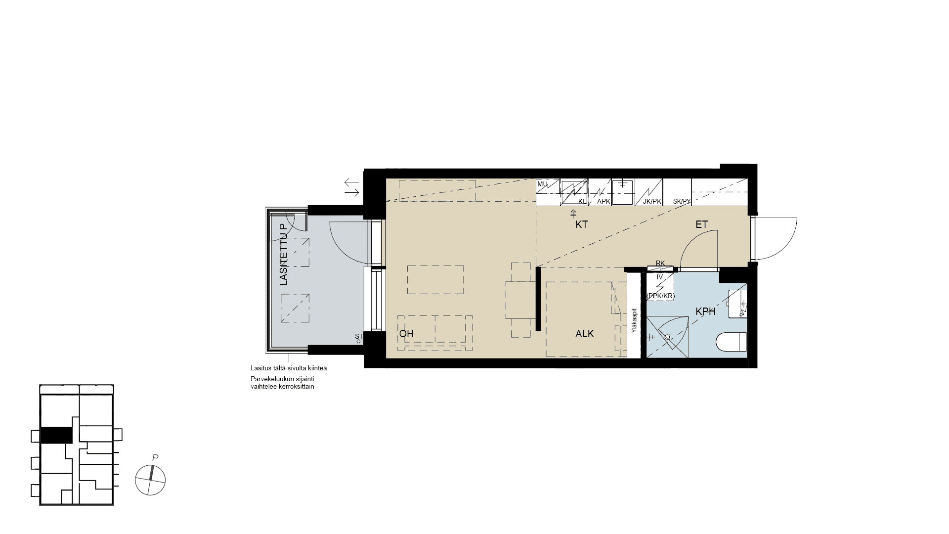
A 35 1h+kt+alkovi 30 m2

Tampereen Sointu

Arvioitu valmistuminen 19.12.2026
Vapaa
Kerros 6/8
Myyntihinta 69 360 €
Velaton hinta 173 400 €
Talotyyppi Kerrostalo
Lisätiedot
Esittely: su 17.05. 13.00-14.30
Esittelyssä pääset tutustumaan rakenteilla oleviin koteihin 4. ja 7. kerroksessa. Vaikka pinnat ja materiaalit eivät ole vielä valmiit, esittely antaa erinomaisen käsityksen huoneiden sijoitteluista ja maisemista.

Asuntoesittelyajat Tampereen Sointu

TULEVAT ASUNTONÄYTÖT
su 17.5.2026
13.00 - 14.30
Esittelyssä pääset tutustumaan rakenteilla oleviin koteihin 4. ja 7. kerroksessa. Vaikka pinnat ja materiaalit eivät ole vielä valmiit, esittely antaa erinomaisen käsityksen huoneiden sijoitteluista ja maisemista.
Etkö löytänyt sopivaa esittelyaikaa? Ota meihin yhteyttä

Tee turvallinen asuntokauppa 1.3.–31.5.2026
  
Solmit kaupat 75 % pienemmällä alkupääomalla, ja asunnon vaihtajana saat lisäksi 12 kk turvan asumiskuluille. Lue lisää ja toimi pian! 
Lisätietoa kampanjasta


OTA YHTEYTTÄ

Asunto

Asunnon numero
A 35
Tyyppi
1h+kt+alkovi
Pinta-ala
30,0 m²
Kerros
6/8
Sauna
Ei
Parveke tai piha
Kyllä
Talotyyppi
Kerrostalo
Varaustilanne
Vapaa

Hintatiedot

Myyntihinta
69 360 € i
Lainaosuus
104 040 € i
Velaton hinta
173 400 € i

Vastikkeet

Hoitovastike
234,00 €
Pääomavastike (korko)
270,50 € i
Vastikkeet yhteensä
504,50 € i
Vesimaksu
20 €/hlö/kk €
Pääomavastike (lyhennys ja korko)
632,91 € i
Kaikki vastikkeet yhteensä
866,91 € i

Lisätiedot

Lisätietoa yhtiölainasta ja /tai lunastettavasta tontista
Laina-aika 25v (1+24). Korko 12 kk:n euribor 2,171% (24.9.2025)+marg. 0,90%=3,071%. 1v. lyh. vapaa, 1. lyhennys 6/2028, lyhennystä aloitetaan keräämään 1/2026. // Yhtiön tontti on vuokratontti, arvioitu tonttivuokra on sisällytetty hoitovastikkeeseen. i
Energialuokka
A2018

Lisätietoa maksuista

Mikäli myytävään huoneistoon kohdistuu taloyhtiölainaa, pääomavastike on arvio ja se muuttuu korkojen muuttuessa.

Yhteisvastuullisen taloyhtiölainan maksamisen turvaamiseksi, jokaista asuntoa koskien, jolla on alkuperäistä yhtiölainaosuutta jäljellä 50 % tai enemmän, taloyhtiö kerää 3 kuukauden pääomavastikkeen suuruisen pääomavastikevakuuden.

Tonttimuoto on kerrottu taloyhtiön tiedoissa kohdassa ”Tontti”. Jos kyseessä on ns. lunastettava vuokratontti, tontinvuokravastike ja tontin lunastusosuus ovat arvioita, jotka muuttuvat maanvuokrasopimuksessa ja kiinteistökaupan esisopimuksessa mainituin tavoin.

Laskuri pääomavastikkeen arviointiin

Arvioi laskurin avulla, mitä vauhtia asunnon kuukausittainen pääomavastike laskee 20 vuoden aikana. Voit myös testata, miten koron muutokset vaikuttavat pääomavastikkeeseen. Laskuriin on valmiiksi tuotu pääomaksi asunnon koko velkaosuus. Muut tiedot saat poimittua yllä olevista asunnon tiedoista. Laskurimme tulos on suuntaa-antava, sillä yhtiökokous päättää pääomavastikkeen suuruuden vuosittain.

Kartta ja palvelut

Rauhaniemi

Asuinalueen parhaat palat
  • Naapurina Näsijärvi
  • Lähikauppaan kävelymatka
  • Kauniit ulkoilureitit
Tutustu alueeseen
Määränpää:

Ota yhteyttä

Kiinnostuitko tästä asunnosta?

Lähetä yhteystietosi, niin asuntomyynti ottaa sinuun yhteyttä.

Minua kiinnostaa
Tampereen Sointu
A 35, 1h+kt+alkovi, 30,0 m²
Kyllä kiitos, sähköpostiini saa lähettää viestejä YIT Kodeista ja asumisesta sekä tietojani käyttää sähköiseen suoramarkkinointiin. Antamalla luvan varmistat, että saat tietoa sinua kiinnostavista kodeista ja pääset varaamaan asunnon ensimmäisten joukossa.

YIT Asuntomyynti

Tampereen Asuntomyynti
Hatanpään valtatie 11, 1. krs, 33100 Tampere
Puhelusta veloitetaan liittymäsopimuksessa määritellyn paikallisverkko- tai matkapuhelinmaksun mukainen hinta.

Samankaltaisia asuntoja

    • Asunnot

      Valitsemillasi hakuehdoilla ei valitettavasti tällä hetkellä löytynyt uusia asuntoja. 
      Koita muita hakuehtoja ja löydä uusi koti!

      Ota yhteyttä asuntomyyntiin

Valitsemillasi hakuehdoilla ei valitettavasti tällä hetkellä löytynyt uusia asuntoja. 
Koita muita hakuehtoja ja löydä uusi koti!

Ota yhteyttä asuntomyyntiin

   

   

Viimeksi katsomasi asunnot

Katsotuimmat asunnot

Valitsemillasi hakuehdoilla ei valitettavasti tällä hetkellä löytynyt uusia asuntoja. 
Koita muita hakuehtoja ja löydä uusi koti!

Ota yhteyttä asuntomyyntiin