A 5

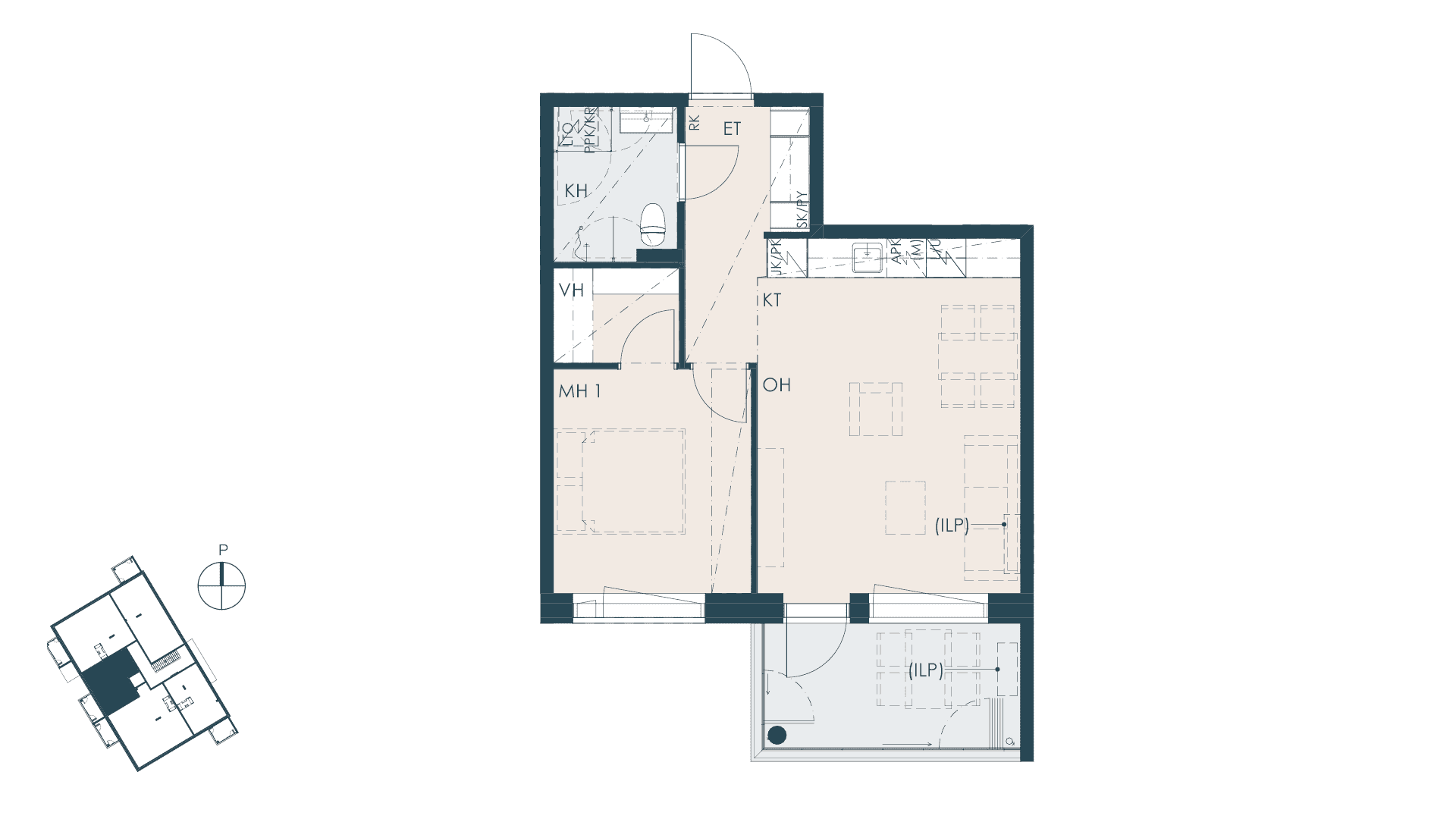
A 5 2h+kt 46 m2

Nurmijärven Kyijynpuisto

Ennakkomarkkinoinnissa
Vapaa
Kerros 2/6
Myyntihinta 101 750 €
Velaton hinta 203 500 €
Talotyyppi Kerrostalo
Lisätiedot

Asunto

Asunnon numero
A 5
Tyyppi
2h+kt
Pinta-ala
46,0 m²
Kerros
2/6
Sauna
Ei
Parveke tai piha
Kyllä
Talotyyppi
Kerrostalo
Varaustilanne
Vapaa

Hintatiedot

Myyntihinta
101 750 € i
Lainaosuus
101 750 € i
Velaton hinta
203 500 € i

Vastikkeet

Hoitovastike
207,00 €
Pääomavastike (korko)
305,25 € i
Vastikkeet yhteensä
512,25 € i
Vesimaksu
20 €/hlö/kk €
Pääomavastike (lyhennys ja korko)
671,55 € i
Kaikki vastikkeet yhteensä
878,55 € i

Lisätiedot

Lisätietoa yhtiölainasta ja /tai lunastettavasta tontista
Arvioitu yhtiölaina-aika 25 vuotta, josta 1. vuonna valmistumisesta erääntyvät vain korot. Korkoarvio laskettu 12 kk:n euribor 2,160% (23.9.2025)+marg. 1,5%. i
Energialuokka
A2018

Lisätietoa maksuista

Mikäli myytävään huoneistoon kohdistuu taloyhtiölainaa, pääomavastike on arvio ja se muuttuu korkojen muuttuessa.

Yhteisvastuullisen taloyhtiölainan maksamisen turvaamiseksi, jokaista asuntoa koskien, jolla on alkuperäistä yhtiölainaosuutta jäljellä 50 % tai enemmän, taloyhtiö kerää 3 kuukauden pääomavastikkeen suuruisen pääomavastikevakuuden.

Tonttimuoto on kerrottu taloyhtiön tiedoissa kohdassa ”Tontti”. Jos kyseessä on ns. lunastettava vuokratontti, tontinvuokravastike ja tontin lunastusosuus ovat arvioita, jotka muuttuvat maanvuokrasopimuksessa ja kiinteistökaupan esisopimuksessa mainituin tavoin.

Laskuri pääomavastikkeen arviointiin

Arvioi laskurin avulla, mitä vauhtia asunnon kuukausittainen pääomavastike laskee 20 vuoden aikana. Voit myös testata, miten koron muutokset vaikuttavat pääomavastikkeeseen. Laskuriin on valmiiksi tuotu pääomaksi asunnon koko velkaosuus. Muut tiedot saat poimittua yllä olevista asunnon tiedoista. Laskurimme tulos on suuntaa-antava, sillä yhtiökokous päättää pääomavastikkeen suuruuden vuosittain.

Kartta ja palvelut

Määränpää:

Ota yhteyttä

Kiinnostuitko tästä asunnosta?

Lähetä yhteystietosi, niin asuntomyynti ottaa sinuun yhteyttä.

Minua kiinnostaa
Nurmijärven Kyijynpuisto
A 5, 2h+kt, 46,0 m²
Kyllä kiitos, sähköpostiini saa lähettää viestejä YIT Kodeista ja asumisesta sekä tietojani käyttää sähköiseen suoramarkkinointiin. Antamalla luvan varmistat, että saat tietoa sinua kiinnostavista kodeista ja pääset varaamaan asunnon ensimmäisten joukossa.

YIT Asuntomyynti

YIT Asuntomyynti, Helsinki
Mall of Tripla, Pasilan Asema-aukio 1 , 00520 Helsinki
*Puhelusta veloitetaan liittymäsopimuksessa määritellyn paikallisverkko- tai matkapuhelinmaksun mukainen hinta.

Samankaltaisia asuntoja

    • Asunnot

      Valitsemillasi hakuehdoilla ei valitettavasti tällä hetkellä löytynyt uusia asuntoja. 
      Koita muita hakuehtoja ja löydä uusi koti!

      Ota yhteyttä asuntomyyntiin

Valitsemillasi hakuehdoilla ei valitettavasti tällä hetkellä löytynyt uusia asuntoja. 
Koita muita hakuehtoja ja löydä uusi koti!

Ota yhteyttä asuntomyyntiin

   

   

Viimeksi katsomasi asunnot