Katso asunnon 3D

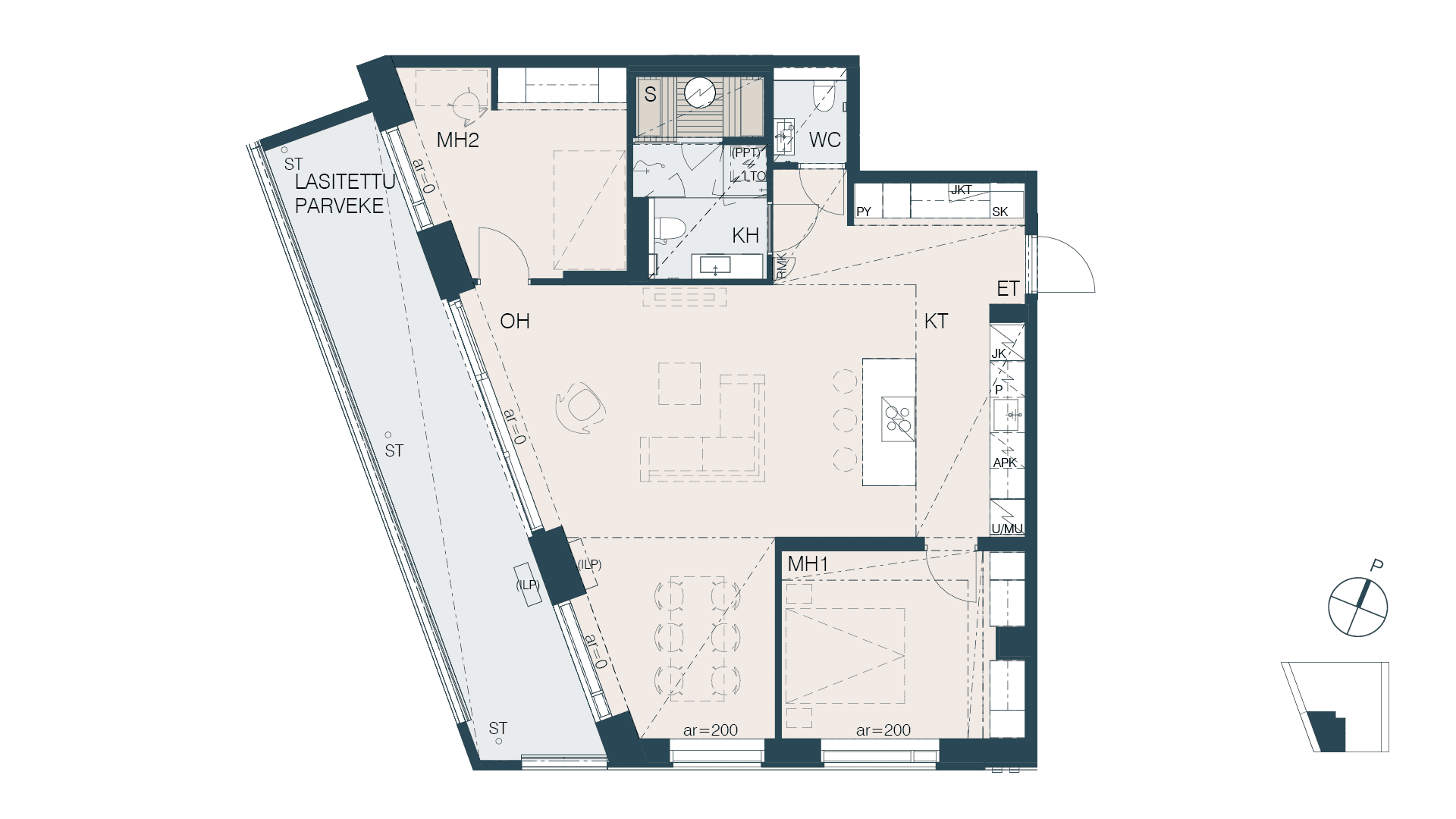
A 49 3h+kt+s 92 m2

Espoon Seaside

Arvioitu valmistuminen 31.12.2026
Vapaa
Kerros 9
Myyntihinta 353 600 €
Velaton hinta 707 200 €
Talotyyppi Kerrostalo
Lisätiedot lasitettu parveke
Lisätiedot

Tee turvallinen asuntokauppa 1.3.–31.5.2026
  
Solmit kaupat 75 % pienemmällä alkupääomalla, ja asunnon vaihtajana saat lisäksi 12 kk turvan asumiskuluille. Lue lisää ja toimi pian! 
Lisätietoa kampanjasta


OTA YHTEYTTÄ

Asunto

Asunnon numero
A 49
Tyyppi
3h+kt+s
Pinta-ala
92,0 m²
Kerros
9
Sauna
Kyllä
Parveke tai piha
Kyllä
Talotyyppi
Kerrostalo
Varaustilanne
Vapaa

Hintatiedot

Myyntihinta
353 600 € i
Lainaosuus
353 600 € i
Velaton hinta
707 200 € i
Vuokratontin lunastus
211 089 € i
Kokonaishinta
918 289 € i

Vastikkeet

Hoitovastike
469,20 €
Pääomavastike (korko)
1 197,29 € i
Vuokratonttivastike
763,60 € i
Vastikkeet yhteensä
2 430,09 € i
Vesimaksu
22 €/hlö/kk €
Pääomavastike (lyhennys ja korko)
2 424,99 € i
Kaikki vastikkeet yhteensä
3 657,79 € i

Lisätiedot

Lisätietoa yhtiölainasta ja /tai lunastettavasta tontista
Laina-aika 25v, ensimmäiset 12kk lyhennysvapaata yhtiön valmistumisesta lukien. Euribor 12kk 2,463%, 21.02.2025 + marginaali 1,6%. Yhtiöllä on huoneistokohtaisin osuuksin (25,50,75 tai 100%) omaksi lunastettava vuokratontti. Hinnastolla mainittu tontinlunastushinta on arvio, tarkistetaan lunastushetken vahvistettuun elinkustannusindeksiin. Tontinvuokravastiketta korotetaan vuosittain elinkustannusindeksin mukaisesti. KTS. maanvuokrasopimus i
Energialuokka
B2018

Lisätietoa maksuista

Mikäli myytävään huoneistoon kohdistuu taloyhtiölainaa, pääomavastike on arvio ja se muuttuu korkojen muuttuessa.

Yhteisvastuullisen taloyhtiölainan maksamisen turvaamiseksi, jokaista asuntoa koskien, jolla on alkuperäistä yhtiölainaosuutta jäljellä 50 % tai enemmän, taloyhtiö kerää 3 kuukauden pääomavastikkeen suuruisen pääomavastikevakuuden.

Tonttimuoto on kerrottu taloyhtiön tiedoissa kohdassa ”Tontti”. Jos kyseessä on ns. lunastettava vuokratontti, tontinvuokravastike ja tontin lunastusosuus ovat arvioita, jotka muuttuvat maanvuokrasopimuksessa ja kiinteistökaupan esisopimuksessa mainituin tavoin.

Laskuri pääomavastikkeen arviointiin

Arvioi laskurin avulla, mitä vauhtia asunnon kuukausittainen pääomavastike laskee 20 vuoden aikana. Voit myös testata, miten koron muutokset vaikuttavat pääomavastikkeeseen. Laskuriin on valmiiksi tuotu pääomaksi asunnon koko velkaosuus. Muut tiedot saat poimittua yllä olevista asunnon tiedoista. Laskurimme tulos on suuntaa-antava, sillä yhtiökokous päättää pääomavastikkeen suuruuden vuosittain.

Kartta ja palvelut

Asuinalueen parhaat palat
  • Upeat merimaisemat
  • Korkeatasoista metropolielämää
  • Loistavat yhteydet
  • Rantaluonto kutsuu liikkumaan
Tutustu alueeseen
Määränpää:

Ota yhteyttä

Kiinnostuitko tästä asunnosta?

Lähetä yhteystietosi, niin asuntomyynti ottaa sinuun yhteyttä.

Minua kiinnostaa
Espoon Seaside
A 49, 3h+kt+s, 92,0 m²
Kyllä kiitos, sähköpostiini saa lähettää viestejä YIT Kodeista ja asumisesta sekä tietojani käyttää sähköiseen suoramarkkinointiin. Antamalla luvan varmistat, että saat tietoa sinua kiinnostavista kodeista ja pääset varaamaan asunnon ensimmäisten joukossa.

YIT Asuntomyynti

YIT Asuntomyynti, Helsinki
Mall of Tripla, Pasilan Asema-aukio 1 , 00520 Helsinki
*Puhelusta veloitetaan liittymäsopimuksessa määritellyn paikallisverkko- tai matkapuhelinmaksun mukainen hinta.

Samankaltaisia asuntoja

    • Asunnot

      Valitsemillasi hakuehdoilla ei valitettavasti tällä hetkellä löytynyt uusia asuntoja. 
      Koita muita hakuehtoja ja löydä uusi koti!

      Ota yhteyttä asuntomyyntiin

Valitsemillasi hakuehdoilla ei valitettavasti tällä hetkellä löytynyt uusia asuntoja. 
Koita muita hakuehtoja ja löydä uusi koti!

Ota yhteyttä asuntomyyntiin

   

   

Viimeksi katsomasi asunnot

Katsotuimmat asunnot

Valitsemillasi hakuehdoilla ei valitettavasti tällä hetkellä löytynyt uusia asuntoja. 
Koita muita hakuehtoja ja löydä uusi koti!

Ota yhteyttä asuntomyyntiin