Rullakujan kulma

Rakenteilla
Vuokrattavana
Liiketilaa

63

Lisätiedot

Vuokrattavana uusi ja monipuolinen liiketila Jyväskylän Kankaalla!

Tarjoamme ensimmäisen kuukauden vuokran veloituksetta, kun vuokrasopimus tehdään vähintään vuoden pituiseksi!

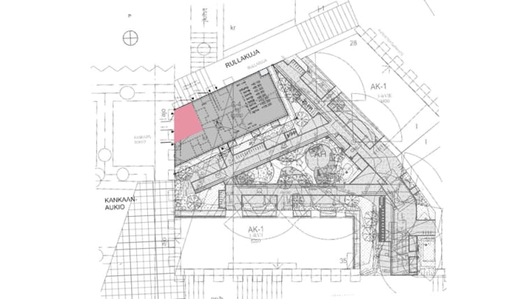
Vuokrattavana erinomaisella paikalla sijaitseva, 62,5 m² liiketila vuodenvaihteessa 2025-2026 valmistuvassa A-Kruunun Jyväskylän Rullakuja 3 asuinkerrostalon kivijalassa. Liiketila sijoittuu Kankaanaukion kulmaan, tarjoten erinomaisen näkyvyyden ja saavutettavuuden alueen vilkkaalle jalankulku- ja pyöräliikenteelle.

Tila soveltuu erinomaisesti vähittäismyyntiin, palvelu- tai toimistokäyttöön sekä esimerkiksi kampaamolle tai kauneudenhoitoalalle tai yhdistykselle. Huomioithan, että tila ei sovellu ravintola- tai muuhun ruoanvalmistuskäyttöön.

Tilassa yhdistyvät modernit, uudet ja muunneltavat puitteet, korkea ja valoisa tila kadunvarressa, esteetön sisäänkäynti suoraan kadulta sekä erinomainen sijainti kehittyvällä ja vetovoimaisella Kankaan alueella.

Tämä on erinomainen vaihtoehto yritykselle, joka arvostaa modernia tilaa ja näkyvää, vilkasliikenteistä sijaintia! Ota yhteyttä ja kysy lisää – vielä ehdit vaikuttaa sisustusratkaisuihin ja tehdä siitä juuri yrityksellesi sopivan.

Liiketilan vuokra on 1125 €/kk (alv 0%). Voit aina jättää myös oman tarjouksesi. Liiketilan vuokralaisen tulee olla hakeutunut arvonlisaverovelvolliseksi.

Hankkeen tiedot

Hankkeen nimi
Rullakujan kulma
Kokonaispinta-ala
62,5 m²
Sijainti
Kankaan alue on yksi Jyväskylän nopeimmin kasvavista ja kehittyvistä kaupunginosista, jossa yhdistyvät moderni asuminen, palvelut ja työpaikat. Alueelle on helppo saapua jalan, pyörällä tai julkisilla kulkuvälineillä, ja pysäköintimahdollisuudet sijaitsevat kävelyetäisyydellä. Liiketilan välittömässä läheisyydessä sijaitsee mm. Gradia ammattikoulu ja Jyväskylän yritystehdas.

Kartta ja palvelut

Määränpää:

Kiinnostuitko? Ota yhteyttä!

Eemeli Heikkinen
Projektipäällikkö

Ota yhteyttä

Ota yhteyttä

Ole ystävällinen ja täytä lomake, niin olemme sinuun pian yhteydessä.