• Ask about the showroom space.
    CONTACT

     


Street-level showroom space in the best location in Maistraatinportti, Pasila

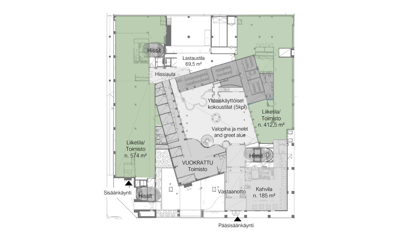
Maistraatinportti, located opposite the shopping center Tripla in Pasila, has two unique street-level business premises for rent, measuring approximately 574 m² and 412.5 m². The versatile spaces are perfectly suited for retail, showroom and office use – you name it!​

The premises can be flexibly divided into different functions according to customer needs. The smoothness of logistics is facilitated by the direct connection of the back of the premises to the property's loading area and the goods elevator leading to the parking garage. There is also a storage space in the basement. ​

Maistraatinportti's unique architecture, bright spaces, the versatile services of neighboring Tripla and the fast-growing Pasila area create the keys to a dynamic operating environment.

Floor layout

  • Maistraatinportti, 1st floor

Image gallery

Location

Are you interested? Contast us!

Contact form